Продается дом, 180 кв.м., /2 эт
| Стоимость | 27 650 000 |
|---|---|
| Комнат в доме | 8 |
| Категория земли | Садоводство |
| Тип комнат | раздельные |
| Право собственности | Собственник |
| Тип парковки | На улице |
| Ремонт | С отделкой |
| Категория земли Avito | Садовое некоммерческое товарищество (СНТ) |
| Способ связи avito | По телефону |
| Материал стен (Авито дома) | Газоблоки |
| Тип отопления cian | Электрическое |
| Тип дома cian | Монолитный |
| Номер телефона для подключения функционала чатов. выгрузка | 89649255276 |
| Водоснабжение avito | Нет |
| Канализация avito | Септик |
| Газ avito | Нет |
| Тип строения | Дом |
| Площадь, кв.м. | 180 |
| Площадь участка, сот | 8 |
| Этажность | 2 |
| Населенный пункт | село Широкая Балка |
|---|---|
| Район города | Центральный |
| Улица | улица Заречная |
| Номер дома | 19 |
Продаётся дом в Широкой Балке – идеальное сочетание природы и комфорта!
Уникальное местоположение:
Дом находится в живописном пригороде Новороссийска, в курортном селе Широкая Балка. Это место для тех, кто мечтает о гармонии с природой: рядом море, горы и лес. Здесь свежий воздух, чистая экология и абсолютное спокойствие. Всего 15 минут до центра города без пробок и светофоров.
Описание дома и участка:
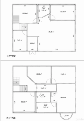
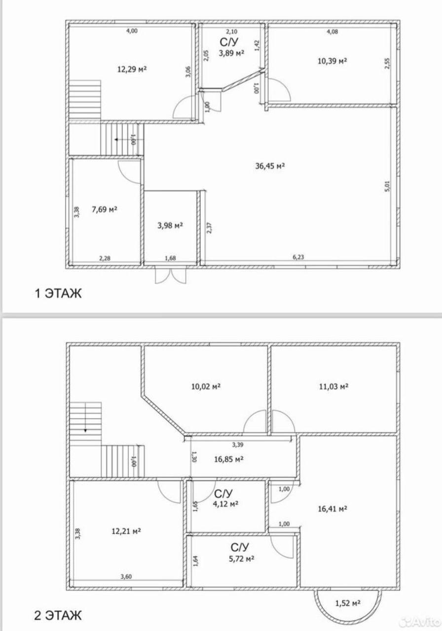
Просторный дом 180 кв.м.
8 комнат, 2 этажа.
Участок 8 соток (6 в собственности + 2 в процессе оформления).
Участок тупиковый, упирается в лес.
Соседи только с одной стороны.
До моря всего 5 минут на машине (2,3 км).
Продуманная планировка:
1 этаж: студия (просторная кухня-гостиная), спальня, гардеробная, кабинет, санузел.
2 этаж: четыре спальни, два санузла, балконы с видом на природу.
Современные коммуникации и удобства:
Полностью проведено электричество.
Отопление: тёплые полы на первом этаже, радиаторы на втором.
Выведены коммуникации под сплит-системы.
Готово место под септик.
Преимущества и атмосфера:
Вас окружает можжевеловый лес и дубы, а прямо напротив дома речка. Здесь можно увидеть белок, черепах и даже енотов!
До дома ведёт живописная асфальтированная дорога.
Вдали от городской суеты, пыли и шума – наслаждайтесь тишиной и природой.
Этот дом – не просто недвижимость, а возможность жить в своём уголке рая. Идеально подходит как для постоянного проживания, так и для загородного отдыха. Отличный вариант для жизни и инвестиций
Звоните, чтобы узнать подробности и записаться на просмотр!











































































